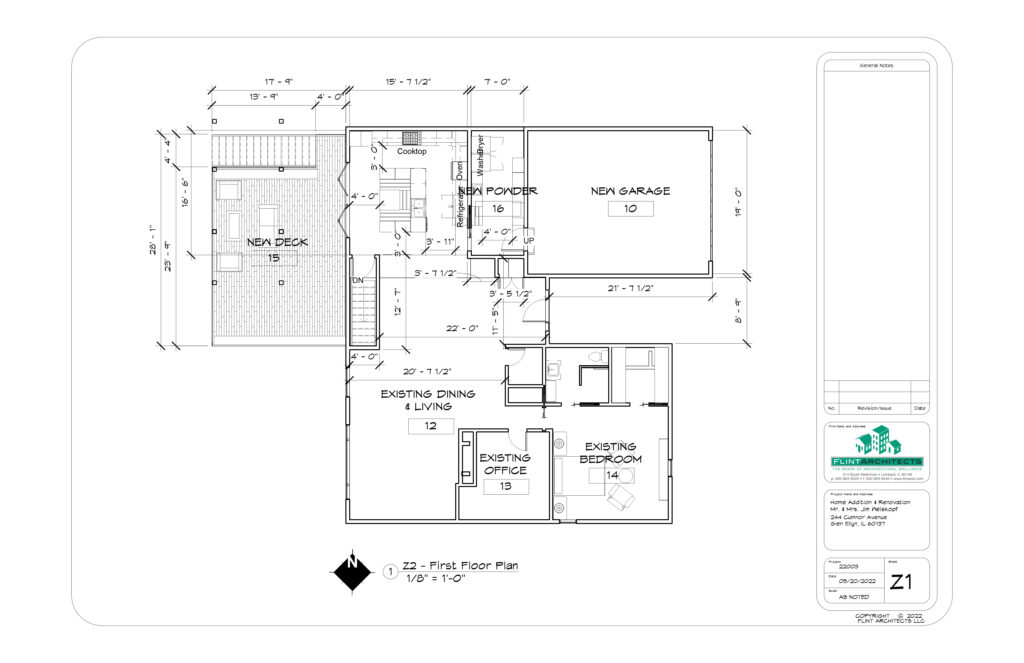
Glen Ellyn Remodel of the Year 2024

In a prestigious recognition of architectural excellence, renowned architect Steve Flint has been awarded the Remodel of the Year (2024)for his Glen Ellyn residential project. The award, presented by the Glen Ellyn Historical Preservation Commission, celebrates Flint’s exceptional vision in transforming a 1954 Ranch home into a modern residence with open floor plan while preserving its original charm.

The Remodel of the Year award is a milestone in Flint’s career, reflecting his dedication to excellence and innovation in architecture. His work not only revitalizes aging structures. As more homeowners seek to modernize their living spaces, Flint’s award-winning project serves as a shining example of what can be achieved with vision, expertise, and  commitment.

Existing House

Construction

New House

Thanks for reading! At Flint Architects, we’re passionate about creating spaces that reflect how people live and work. Founded by Stephen Flint, a University of Illinois alumnus with over two decades of design and construction experience, we combine creativity and practicality to bring your vision to life.

12 Responses

  1. Pingback: hello world

Flint Architects

Learn how Flint Architects can make your Dream Project happen. Recieve Monthly information that can help you move forward with your project.

Let's have a chat